REQUEST A TOUR If you would like to see this home without being there in person, select the "Virtual Tour" option and your agent will contact you to discuss available opportunities.
In-PersonVirtual Tour

$960,000
Est. payment /mo
3 Beds
2 Baths
1,657 SqFt
UPDATED:
Key Details
Property Type Single Family Home
Sub Type Ranch
Listing Status Active
Purchase Type For Sale
Square Footage 1,657 sqft
Price per Sqft $579
Subdivision Big Bay
MLS Listing ID 2005967
Style Ranch
Bedrooms 3
Full Baths 2
HOA Fees $500/ann
Year Built 2025
Annual Tax Amount $1,491
Tax Year 2024
Lot Size 2.360 Acres
Acres 2.36
Property Sub-Type Ranch
Property Description
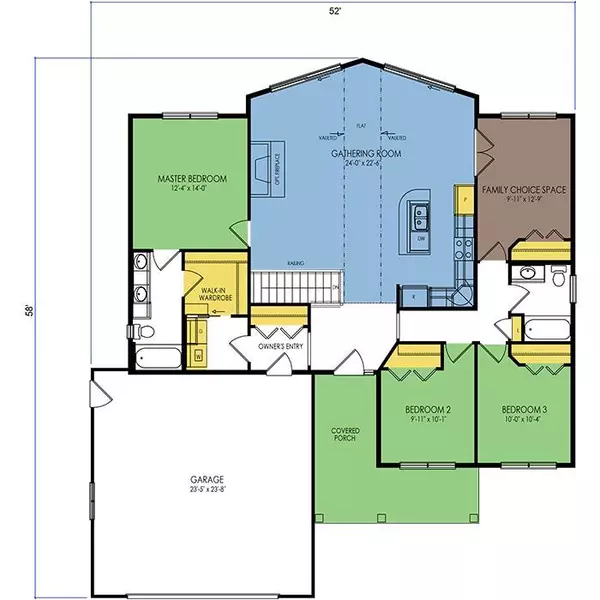
Construction initiated upon customer purchase agreement. Front porch leads you to a spacious foyer flowing into an open concept. Numerous windows offer amazing views. Kitchen, dining, and living room all open to each other with vaulted ceilings. Kitchen with pantry, center island and breakfast bar. Master ensuite with a huge walk-in closet. Family choice space could be a den, office, or 4th bedroom. List price is base price, ask about finishes and upgrade options. Waterfront lot in the Big Bay neighborhood on Lake Petenwell. Whether you're planning a full time residency or a weekend escape, this is the spot to be. Prices are an estimate.
Location
State WI
County Juneau
Zoning Res/Sh
Rooms
Basement Full
Kitchen Main
Interior
Heating Lp Gas
Cooling Forced Air, Central Air
Exterior
Exterior Feature Vinyl, Stone
Parking Features 2 Car, Attached
Garage Spaces 2.0
Building
Sewer Private Septic System
New Construction N
Schools
Elementary Schools Call School District
Middle Schools Call School District
High Schools Call School District
School District Necedah
Read Less Info
Copyright 2025 WIREX - All Rights Reserved
Listed by EXP Realty, LLC
GET MORE INFORMATION




