REQUEST A TOUR If you would like to see this home without being there in person, select the "Virtual Tour" option and your agent will contact you to discuss available opportunities.
In-PersonVirtual Tour

$780,000
Est. payment /mo
3 Beds
2 Baths
1,657 SqFt
UPDATED:
Key Details
Property Type Single Family Home
Sub Type Ranch
Listing Status Active
Purchase Type For Sale
Square Footage 1,657 sqft
Price per Sqft $470
Subdivision Pinewood Shores
MLS Listing ID 2012248
Style Ranch
Bedrooms 3
Full Baths 2
HOA Fees $450/ann
Annual Tax Amount $1,619
Tax Year 2024
Lot Size 3.400 Acres
Acres 3.4
Property Sub-Type Ranch
Property Description
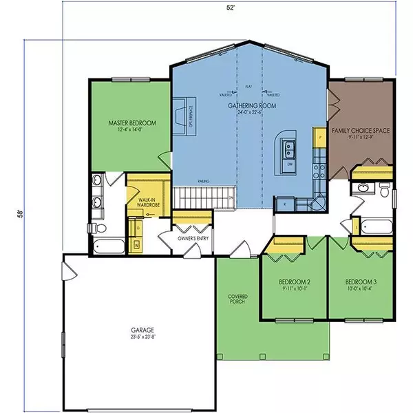
Construction initiated upon customer purchase agreement. Front porch leads you to a spacious foyer flowing into open concept. Numerous windows offer amazing views. Kitchen, dining, and living room all open to each other with vaulted ceilings. Kitchen with pantry, center island and breakfast bar. Master ensuite with huge walk-in closet. Family choice space could be a den, office, or 4th bedroom. List price is base price, ask about finishes and upgrade options. Waterfront lot in Southview Shores of Lake Petenwell. Boat slip in front of property with east lake access. Whether you're planning a full-time residence or a weekend escape, this is the spot to be. Prices are an estimate.
Location
State WI
County Juneau
Zoning Res&Sh
Rooms
Basement Full
Kitchen Main
Interior
Heating Lp Gas
Cooling Forced Air, Central Air
Exterior
Exterior Feature Vinyl, Stone
Parking Features 2 Car, Attached
Garage Spaces 2.0
Building
Sewer Private Septic System
New Construction N
Schools
Elementary Schools Caledonia
Middle Schools Call School District
High Schools Call School District
School District Necedah
Read Less Info
Copyright 2026 WIREX - All Rights Reserved
Listed by EXP Realty, LLC
GET MORE INFORMATION




